- ลงประกาศฟรี
- สมัครสมาชิก / เข้าสู่ระบบ
-
ภาษาไทย- th
-
THB - ฿
- ซื้อ
- ประเภทอสังหาฯใน ภูเก็ต
- ภูเก็ต
- ดูประกาศล่าสุด
- ซื้อบ้านกับ Klung Baan ดีอย่างไร?
- เช่า
- ขาย
- โครงการทั้งหมด
โครงการ เดอะ ซีโร่ ในยาง เป็นโครงการประเภท คอนโด / อพาร์ทเม้นท์ ตั้งอยู่ในทำเลพื้นที่ สาคู, ภูเก็ต ซึ่งมีแผนการก่อสร้างให้แล้วเสร็จใน มิ.ย. 2571 โดยมีทั้งหมด 5 ชั้น รวมทั้งสิ้น 40 ยูนิต ซึ่งเป็นโครงการคุณภาพโดย Zero Developments Co., Ltd. และเป็นบริษัทเดียวกันที่ได้พัฒนาโครงการ The Zero Bang Tao (เดอะซีโร่ บางเทา) อีกด้วย
เดอะ ซีโร่ ในยาง (The Zero Nai Yang) เป็นโครงการที่อยู่อาศัยสไตล์โมเดิร์นโลว์ไรส์ ตั้งอยู่ในย่านในยาง จังหวัดภูเก็ต ใกล้หาดในยางและสนามบินนานาชาติภูเก็ตเพียงไม่กี่นาที เหมาะสำหรับผู้ที่มองหาความสงบ ความเป็นส่วนตัว และการพักผ่อนท่ามกลางธรรมชาติ
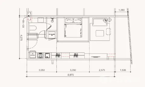
การออกแบบโครงการเน้นสไตล์ทรอปิคอลร่วมสมัย ผสานความเรียบหรูกับธรรมชาติได้อย่างลงตัว ห้องพักได้รับการออกแบบอย่างพิถีพิถัน เน้นการใช้พื้นที่อย่างมีประสิทธิภาพ พร้อมแสงธรรมชาติและการระบายอากาศที่ดี ทำให้บรรยากาศภายในห้องโปร่งสบาย น่าอยู่อาศัย
พื้นที่ส่วนกลางครบครัน อาทิ สระว่ายน้ำ ห้องออกกำลังกาย สวนหย่อม และพื้นที่จอดรถ พร้อมระบบรักษาความปลอดภัยตลอด 24 ชั่วโมง เพื่อความอุ่นใจของผู้อยู่อาศัย
ด้วยทำเลศักยภาพ ใกล้ชายหาด ร้านอาหาร คาเฟ่ แหล่งช้อปปิ้ง และสถานที่ท่องเที่ยวสำคัญ โครงการนี้จึงเหมาะทั้งสำหรับการอยู่อาศัยจริง บ้านพักตากอากาศ และการลงทุนในระยะยาว
เดอะ ซีโร่ ในยาง คือคำตอบของการใช้ชีวิตที่ลงตัว ระหว่างความสงบของธรรมชาติและความสะดวกสบายในชีวิตประจำวัน
ลองเช็คดูก่อนว่าบ้านของคุณนั้นควรมีราคาอยู๋ที่ประมาณเท่าไหร่ ในทำเลนี้?
A highly esteemed and award-winning London developer has finally arrived in Thailand. Experience the unmatched British quality of development on a tropical island.
With over 20 years of success in the world's most competitive market, we bring excellence to your doorstep.

หากคนไทยแต่งงานกับชาวต่างชาติ แล้วต้องการจะซื้อบ้านหรือที่ดิน แล้วทำการโอนกรรมสิทธิ์ในชื่อของคู่สมรสชาวต่างชาตินั้น ตามกฎหมายไทยจะไม่ให้ชาวต่างชาติ ถือครองที่ดินในประเทศไทยได้ ดังนั้นจึงเป็นไปไม่ได้
แต่หากมีความยินยอมระหว่างกันก็สามารถโอนเป็นชื่อคู่สมรสคนไทยได้ตามปรกติ โดยจะมีความซับซ้อนขึ้นอีกเล็กน้อย แบ่งเป็นกรณี
1. "คู่สมรสชาวต่างชาติเตินทางไปที่กรมที่ดินด้วยไม่ได้" จะไม่สามารถใช้เอกสารมอบอำนาจแบบคนไทยได้ แต่จะต้องขอบันทึกถ้อยคำรับรองว่าเงินทั้งหมดที่นำมาซื้อบ้านหรือที่ดินนี้ เป็นทรัพย์สินส่วนตัว ไม่ใช่สินสมรส และให้หน่วยงาน เช่น สถานเอกอัครราชทูต สถานกงสุล หรือโนตารีพับลิค ทำการรับรองว่าทั้งคู่เป็นสามี ภรรยาจริง และให้คู่สมรสคนไทยนำเอกสารรับรอง (เอกสารตัวจริง) ไปดำเนินการต่อที่กรมที่ดินเองต่อไป
2. "หากคู่สมรสชาวต่างชาติสามารถเดินทางไปพร้อมกับคนไทยที่เป็นคู่สมรสได้" ก็แค่ยินดีเซ็นรับรองว่าบ้านหรือที่ดินแปลงที่กำลังจะซื้อกันนี้ จะตกเป็นกรรมสิทธิ์ของคู่สมรสคนไทยเพียงฝ่ายเดียวเท่านั้น
หากคุณได้เข้าเยี่ยมชมโครงการ เดอะ ซีโร่ ในยาง และตัดสินใจเลือกยูนิตที่ต้องการแล้ว คุณต้องเตรียมตัวกับเรื่องต่าง ๆ ดังต่อไปนี้
- โอนเงินมัดจำการจอง
- ทำสัญญาตกลงซื้อขาย (อาจจะมีการชำระเงินเพิ่มบางส่วน)
- ผ่อนชำระเงินดาวน์ตามงวดที่ตกลง (ถ้ามี)
- ทำเรื่องเอกสารเพื่อขอกู้ยืมกับธนาคาร
- กำหนดการตรวจรับบ้าน
- หากพบเจอปัญหาการตรวจรับ ให้ลงรายการและแจ้งโครงการให้แก้ไข
- ตรวจรับบ้านรอบสุดท้าย
- กำหนดการโอนกรรมสิทธิ์ และ เซ็นสัญญากู้ยืมกับธนาคาร
สำหรับคอนโดมือหนึ่ง
- ก่อนการยื่นกู้ ผู้ซื้อจะต้องผ่อนชำระเป็นเงินดาวน์กับโครงการเป็นระยะเวลาหนึ่งตามตกลง เพราะฉะนั้นผู้ซื้อควรต้องมีเงินเก็บอยู่ก้อนหนึ่งสำหรับผ่อนดาวน์ให้ครบสัญญา
- เมื่อยื่นกู้ ทางธนาคารมักจะอนุมัติให้กู้ได้เต็มจำนวน 100% ของยอดที่เหลือหลังผ่อนดาวน์ เพราะธนาคารจะประเมินว่าท่านมีศักยภาพเพียงพอในการผ่อนชำระ
สำหรับคอนโดมือสอง
- ไม่มีระบบผ่อนดาวน์กับทางผู้ขาย ก่อนการยื่นกู้
- ธนาคารมักจะไม่อนุมัติเต็มจำนวนให้ โดยทั่วไปจะอนุมัติที่ 80 - 90% ของราคาประเมิน หรือ ราคาซื้อขาย (ธนาคารมักจะเลือกราคาที่ต่ำกว่า)
- ผู้ซื้อควรต้องมีเงินสำรอง เพื่อรองรับกับยอดกู้ที่ขาดไป 10-20% เพื่อเป็นเงินจ่ายตรงให้กับผู้ขาย
- ผู้ซื้อควรมีเงินสำรองอีกก้อน เพื่อใช้สำหรับการซ่อมบำรุง
ทั้งนี้ ผู้ซื้อสามารถเลือกเปรียบเทียบการปล่อยกู้ของแต่ละธนาคารได้ก่อนการยื่นกู้ ซึ่งรายละเอียดอาจจะแตกต่างจากที่กล่าวมาข้างต้น ขึ้นอยู่กับอีกหลายปัจจัยและนโยบายของแต่ละธนาคาร
การซื้อคอนโดนั้น สามารถทำได้ตั้งแต่ที่ยังไม่ได้เริ่มก่อสร้าง หรือกำลังก่อสร้างอยู่ รวมไปถึงหากอยากมั่นใจริงๆ คือซื้อในช่วงที่ก่อสร้างเสร็จแล้ว ก็สามารถทำได้ แต่อาจจะไม่ได้ห้องที่ต้องการหลงเหลืออยู่แล้ว เพราะโดยส่วนใหญ่ โครงการคอนโดมักจะเริ่มเปิดขายตั้งแต่ช่วงยังไม่ได้เริ่มก่อสร้างเลย โดยใช้กลยุทธทางการตลาดต่างๆ เพื่อดึงผู้ซื้อเข้ามาเพื่อนำเงินจองทำสัญญาและเงินดาวน์ต่างๆ เข้ามาเพิ่มเป็นเงินทุนในการดำเนินการก่อสร้างของโครงการ ซึ่งนี่ก็เป็นข้อดีอย่างหนึ่งของผู้ซื้อ ดังนี้
1. ได้รับโปรโมชั่นที่น่าสนใจมากกว่าปรกติ เช่น ส่วนลดพิเศษถ้าซื้อช่วง Pre-Sale, ได้รับเฟอร์นิเจอร์ในคอนโดหลายชิ้นฟรี, ฟรีค่าธรรมเนียมต่างๆ, หรือส่วนลดค่าส่วนกลางตามระยะที่กำหนด ฯลฯ
2. สามารถเลือกห้องที่ต้องการได้อย่างเสรี ทั้งแบบห้อง และ ทำเลของห้องเพราะเหลือห้องให้เลือกมากมาย
3. ธนาคารสามารถปล่อยให้กู้ได้เต็มจำนวนของค่าห้อง
4. หากท่านเป็นนักลงทุน การซื้อห้องแบบ Pre-Sale ก็จะช่วยให้ท่านสามารถเพิ่มกำไรในการ ปล่อยเช่า หรือ ขายต่อ ได้ดีมากอีกด้วย
แต่ในข้อดีบางอย่างที่กล่าวมาข้างต้น ท่านก็ควรพิจารณาถึงข้อเสียไว้ด้วย ซึ่งมีโอกาสเกิดขึ้นได้ ดังนี้
1. การก่อสร้างไม่แล้วเสร็จตามกำหนด จึงไม่เหมาะกับคนที่ต้องการเข้าอยู่แบบเร่งด่วน หรือไม่เผื่อระยะเวลาให้กับการก่อสร้าง
2. ไม่ผ่านการขออนุมัติ EIA (หลายโครงการเปิดขายไปแล้ว ก่อสร้างไปแล้ว แต่ยื่นขอไม่ผ่าน)
3. หากเกิดข้อพิพาทใดๆ ในระหว่างการก่อสร้าง หรือ หลังจากสร้างเสร็จ ทำให้เสียเวลาในการฟ้องร้องและเสียสุขภาพจิตเป็นอย่างมาก
4. มีโอกาสที่วิวต่างๆ หรือบรรยากาศการเข้าพัก ที่เคยคิดไว้ว่าเราจะได้รับเป็นอย่างดีเมื่อตอนก่อนก่อสร้าง จะถูกบดบังในอนาคตเพราะโครงการใหม่ ๆ อาจจะก่อสร้างในภายหลังได้
โครงการ เดอะ ซีโร่ ในยาง อยู่ห่างจาก Pensiri Mart เพียงแค่ 340 เมตรเท่านั้น ซึ่งใช้เวลาเดินไปเพียง 5 นาที
และยังมีร้านต่างๆ ที่อยู่ใกล้กับโครงการ เดอะ ซีโร่ ในยาง ซึ่ง 3 ร้านที่ใกล้ที่สุด คือ
- ナイヤン ナイトマーケット開催地 อยู่ห่างไปเพียง 680 เมตร (เดินแค่ประมาณ 9 นาที)
- Mingle Mall Naiyang อยู่ห่างแค่ 900 เมตรเท่านั้น (ใช้เวลาเดินประมาณ 12 นาที)
- KING POWER Phuket International Airport ซึ่งอยู่ห่างไปแค่ 2.7 กม. (สามารถขับรถไปแค่ประมาณ 7 นาที)
ร้านอาหารที่ใกล้กับโครงการ เดอะ ซีโร่ ในยาง นั้นมีให้เลือกมากมาย เราขอเสนอร้านที่ใกล้ที่สุด ดังนี้
- MaMaNang Restaurant นั้นอยู่ใกล้กับโครงการเพียง 60 เมตร (ซึ่งคุณสามารถเดินไปที่ร้านได้ ในเวลาประมาณ 1 นาที เท่านั้น)
- Mama Nang อยู่ห่างจากโครงการเพียง 70 เมตร (คุณแค่เดินไปประมาณ 1 นาที ก็ถึงแล้ว)
- Enjoy Saab Elee นั้นอยู่ห่างไปประมาณ 900 เมตร (เดินไปที่ร้านใช้เวลาประมาณ 12 นาที)
โรงพยาบาลส่งเสริมสุขภาพประจำตำบลสาคู เป็นสถานพยาบาลที่ใกล้ที่สุด ซึ่งห่างจากโครงการไป 1.1 กม. (ซึ่งหากขับรถไป ก็จะใช้เวลาประมาณ 3 นาที)
หากจะมองหาสถานศึกษาหรือแหล่งเรียนรู้ใกล้ๆกับโครงการ นี่คือสถานที่ที่เราแนะนำ
- Crystal Blue Divers Co.LTD อยู่ห่างไปเพียง 870 เมตรเท่านั้น (เดินไปแค่ 12 นาที เท่านั้นเอง)
- Sea Bees Diving - Nai Yang อยู่ห่างแค่ 590 เมตรเท่านั้น (หากจะเดินไป ก็ใช้เวลาประมาณ 8 นาที)
- Paradise Diving Asia อยู่ห่างไปประมาณ 600 เมตรเท่านั้นเอง (สามารถเดินเพียง 8 นาที ก็ถึง)
Phuket International Airport นั้นอยู่ห่างจากโครงการ 3.0 กม. ซึ่งหากขับรถไปจะใช้เวลาโดยประมาณ 8 นาที หรือหากจะเดินทางด้วยแท๊กซี่ ก็ขึ้นอยู่กับการจราจร ณ ช่วงเวลานั้นๆ