- ลงประกาศฟรี
- สมัครสมาชิก / เข้าสู่ระบบ
-
ภาษาไทย- th
-
THB - ฿
- ซื้อ
- ประเภทอสังหาฯใน ชลบุรี
- ชลบุรี
- ดูประกาศล่าสุด
- ซื้อบ้านกับ Klung Baan ดีอย่างไร?
- เช่า
- ขาย
- สินเชื่อ
- โครงการทั้งหมด
โครงการ เพียว ซันเซ็ท บีช เป็นโครงการประเภท คอนโด / อพาร์ทเม้นท์ ตั้งอยู่ในทำเลพื้นที่ นาจอมเทียน, พัทยา และได้สร้างเสร็จแล้วเมื่อ พ.ย. 2558 โดยมีทั้งหมด 5 ชั้น รวมทั้งสิ้น 30 ยูนิต ซึ่งเป็นโครงการคุณภาพโดย Western Seaview Co., LTD
เพียว ซันเซ็ท บีช (Pure Sunset Beach)
คอนโดมิเนียมหรูมีคุณภาพสไตล์ยุโรปทำเลเด่นติดทะเล "เพียว ซันเซ็ท บีช (Pure Sunset Beach)" ถูกออกแบบให้เป็นมิตรต่อสิ่งแวดล้อม Eco- friendly โดยมีการนำเอาเทคโนโลยีนวัตกรรมสมัยใหม่ที่ได้รับมาตรฐานจากยุโรป เน้นความเป็นส่วนตัวที่มาพร้อมความสะดวกสบาย
เพียว ซันเซ็ท บีช (Pure Sunset Beach) เป็นคอนโด Low Rise ที่มีการตกแต่งด้วยโทนสีสบายตา ตั้งอยู่ริมชายทะเลโดยทุกยูนิตสามารถมองเห็นวิวทะเลและพระอาทิตย์ตกดินได้อย่างสวยงาม เรียกได้ว่าบรรยากาศแสนจะโรแมนติกเหมาะแก่การพักผ่อนเป็นอย่างยิ่ง รอบ ๆ โครงการก็รายล้อมไปด้วยสิ่งอำนวยความสะดวกมากมาย ไม่ว่าจะเป็น มิโมซ่า พัทยา (Mimosa Pattaya), ตลาดน้ำสี่ภาค, Pattaya Airpark, สวนนงนุช, สวนน้ำ Cartoon Network Amazone และ Elephant Village สิ่งเหล่านี้สามารถตอบสนองความต้องการในการดำเนินชีวิตของผู้คนยุคสมัยใหม่ได้เป็นอย่างดี รวมไปถึงอยู่ใกล้ร้านค้าร้านสะดวกซื้อ ห้างสรรพสินค้า เช่น ท็อปส์เดลี่ เทสโก้ โลตัสพัทยาใต้ วิทยาลัยเทคนิคสัตหีบ และวิทยาลัยเกษตรและเทคโนโลยีชลบุรี เป็นต้น
รายละเอียดและที่ตั้งของโครงการ
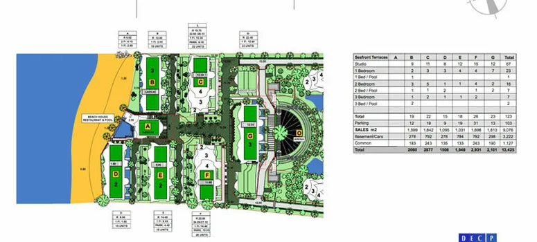
เพียว ซันเซ็ท บีช (Pure Sunset Beach) คอนโดมิเนียม Low Rise มีขนาดที่ดินประมาณ 33 ไร่ มีความสูง 2 - 5 ชั้น มี 6 อาคาร อาคาร D สูง 2 ชั้น อาคาร B,E,G สูง 3 ชั้นและอาคาร C,F สูง 5 ชั้น มีจำนวนห้องพักอาศัยทั้งหมด 111 ยูนิต สร้างแล้วเสร็จเมื่อปี พ.ศ.2558 โดยตั้งอยู่ที่หาดตะวันรอนย่านนาจอมเทียน ถนนสุขุมวิท ซอยนาจอมเทียน 48 ตำบลนาจอมเทียน อำเภอสัตหีบ จังหวัดชลบุรี ได้มีการออกแบบโดยสถาปนิกชาวสวิส บริษัท เวสเทิร์น ซีวิว
รูปแบบและขนาดของห้องพัก
- สตูดิโอ ขนาดของพื้นที่ใช้สอย 33 - 52 ตารางเมตร
- 1 ห้องนอน ขนาดของพื้นที่ใช้สอย 71 - 133 ตารางเมตร
- 2 ห้องนอน ขนาดของพื้นที่ใช้สอย 84 - 193 ตารางเมตร
- 3 ห้องนอน ขนาดของพื้นที่ใช้สอย 118 - 126 ตารางเมตร
สิ่งอำนวยความสะดวกในโครงการ
- โถงต้อนรับ
- สระว่ายน้ำ
- ฟิตเนส
- สปา
- สวนหย่อม
- ที่จอดรถ
- CCTV
- ลิฟท์โดยสาร
- ระบบรักษาความปลอดภัย 24 ชั่วโมง
- Access Key Card
การเดินทาง
การเดินทางถ้าหากเริ่มต้นจากถนนสุขุมวิทโดยให้มุ่งหน้าไปทางทิศใต้ไปตลาดน้ำ 4 ภาคพัทยา ขับตรงไปประมาณ 5 กิโลเมตร ผ่านวิทยาลัยเกษตรและเทคโนโลยีชลบุรีขับต่อไปอีก 480 เมตร ผ่านวิทยาลัยเทคนิคสัตหีบทางด้านซ้ายมือ ให้ขับตรงไปอีก 1.4 กิโลเมตร ผ่านหมู่บ้านบารมี ระยะทาง 90 เมตร ให้เลี้ยวขวาสู่ซอยนาจอมเทียน 48 ตรงไปเรื่อยเลี้ยวซ้ายเข้าสู่ถนนสด กูรมะโรหิต ขับไป 500 เมตรเลี้ยวขวาเข้าโครงการ เพียว ซันเซ็ท บีช (Pure Sunset Beach) จะอยู่ทางด้านขวามือ
ลองเช็คดูก่อนว่าบ้านของคุณนั้นควรมีราคาอยู๋ที่ประมาณเท่าไหร่ ในทำเลนี้?

หากคนไทยแต่งงานกับชาวต่างชาติ แล้วต้องการจะซื้อบ้านหรือที่ดิน แล้วทำการโอนกรรมสิทธิ์ในชื่อของคู่สมรสชาวต่างชาตินั้น ตามกฎหมายไทยจะไม่ให้ชาวต่างชาติ ถือครองที่ดินในประเทศไทยได้ ดังนั้นจึงเป็นไปไม่ได้
แต่หากมีความยินยอมระหว่างกันก็สามารถโอนเป็นชื่อคู่สมรสคนไทยได้ตามปรกติ โดยจะมีความซับซ้อนขึ้นอีกเล็กน้อย แบ่งเป็นกรณี
1. "คู่สมรสชาวต่างชาติเตินทางไปที่กรมที่ดินด้วยไม่ได้" จะไม่สามารถใช้เอกสารมอบอำนาจแบบคนไทยได้ แต่จะต้องขอบันทึกถ้อยคำรับรองว่าเงินทั้งหมดที่นำมาซื้อบ้านหรือที่ดินนี้ เป็นทรัพย์สินส่วนตัว ไม่ใช่สินสมรส และให้หน่วยงาน เช่น สถานเอกอัครราชทูต สถานกงสุล หรือโนตารีพับลิค ทำการรับรองว่าทั้งคู่เป็นสามี ภรรยาจริง และให้คู่สมรสคนไทยนำเอกสารรับรอง (เอกสารตัวจริง) ไปดำเนินการต่อที่กรมที่ดินเองต่อไป
2. "หากคู่สมรสชาวต่างชาติสามารถเดินทางไปพร้อมกับคนไทยที่เป็นคู่สมรสได้" ก็แค่ยินดีเซ็นรับรองว่าบ้านหรือที่ดินแปลงที่กำลังจะซื้อกันนี้ จะตกเป็นกรรมสิทธิ์ของคู่สมรสคนไทยเพียงฝ่ายเดียวเท่านั้น
หากคุณได้เข้าเยี่ยมชมโครงการ เพียว ซันเซ็ท บีช และตัดสินใจเลือกยูนิตที่ต้องการแล้ว คุณต้องเตรียมตัวกับเรื่องต่าง ๆ ดังต่อไปนี้
- โอนเงินมัดจำการจอง
- ทำสัญญาตกลงซื้อขาย (อาจจะมีการชำระเงินเพิ่มบางส่วน)
- ผ่อนชำระเงินดาวน์ตามงวดที่ตกลง (ถ้ามี)
- ทำเรื่องเอกสารเพื่อขอกู้ยืมกับธนาคาร
- กำหนดการตรวจรับบ้าน
- หากพบเจอปัญหาการตรวจรับ ให้ลงรายการและแจ้งโครงการให้แก้ไข
- ตรวจรับบ้านรอบสุดท้าย
- กำหนดการโอนกรรมสิทธิ์ และ เซ็นสัญญากู้ยืมกับธนาคาร
ในสภาพเศรษฐกิจปัจจุบัน ทำให้หลายคนมองหาการซื้อคอนโดมือสอง เพื่อเป็นที่อยู่อาศัยกันมากขึ้น เนื่องด้วยเหตุปัจจัยหลายอย่าง ดังนี้
1. คอนโดมือสองนั้น มีราคาที่ถูกกว่าคอนโดมือหนึ่งในยุคนี้อย่างเห็นได้ชัด หากเทียบกับขนาดห้อง และทำเลที่ใกล้เคียงกัน
2. ได้เห็นบรรยากาศโดยรอบทั้งภายใน และภายนอกโครงการได้อย่างชัดเจน ทำให้ประเมินการใช้ชีวิต หากต้องอยู่ที่นี่ได้ง่ายขึ้น
3. มีโอกาสได้ทำเลที่ตั้งที่ดีกว่าคอนโดมือหนึ่ง เพราะนับวันพื้นที่ในทำเลดีๆ หาได้ยากยิ่งนักและมีราคาสูงมาก แต่ต้องยอมรับกับสภาพและอายุการก่อสร้างของคอนโดมือสองให้ได้ด้วยเช่นกัน
4. ส่วนใหญ่แล้วคอนโดมือสองจะถูกตกแต่ง หรือ Built In เฟอร์นิเจอร์อย่างครบถ้วนแล้ว จึงสามารถย้ายเข้าอยู่ได้ทันที
5. วัสดุที่ใช้ในการก่อสร้างคอนโดมือสองหลายโครงการมีคุณภาพดีกว่า เนื่องจากราคาของวัสดุในช่วงที่ก่อสร้างอาจจะไม่ได้สูงเท่ากับในยุคนี้ ทำให้ผู้ประกอบการเลือกใช้วัสดุคุณภาพสูง