ขาย บ้านเดี่ยว 5 ห้องนอน ในโครงการ The City Bangna (เดอะ ซิตี้ บางนา)

(1 รีวิว)
บางแก้ว, บางพลี,สมุทรปราการ
เลขที่ยูนิต: U5925455
ผลตอบแทนการเช่า 11%
5 ห้องนอน
5.5 ห้องน้ำ
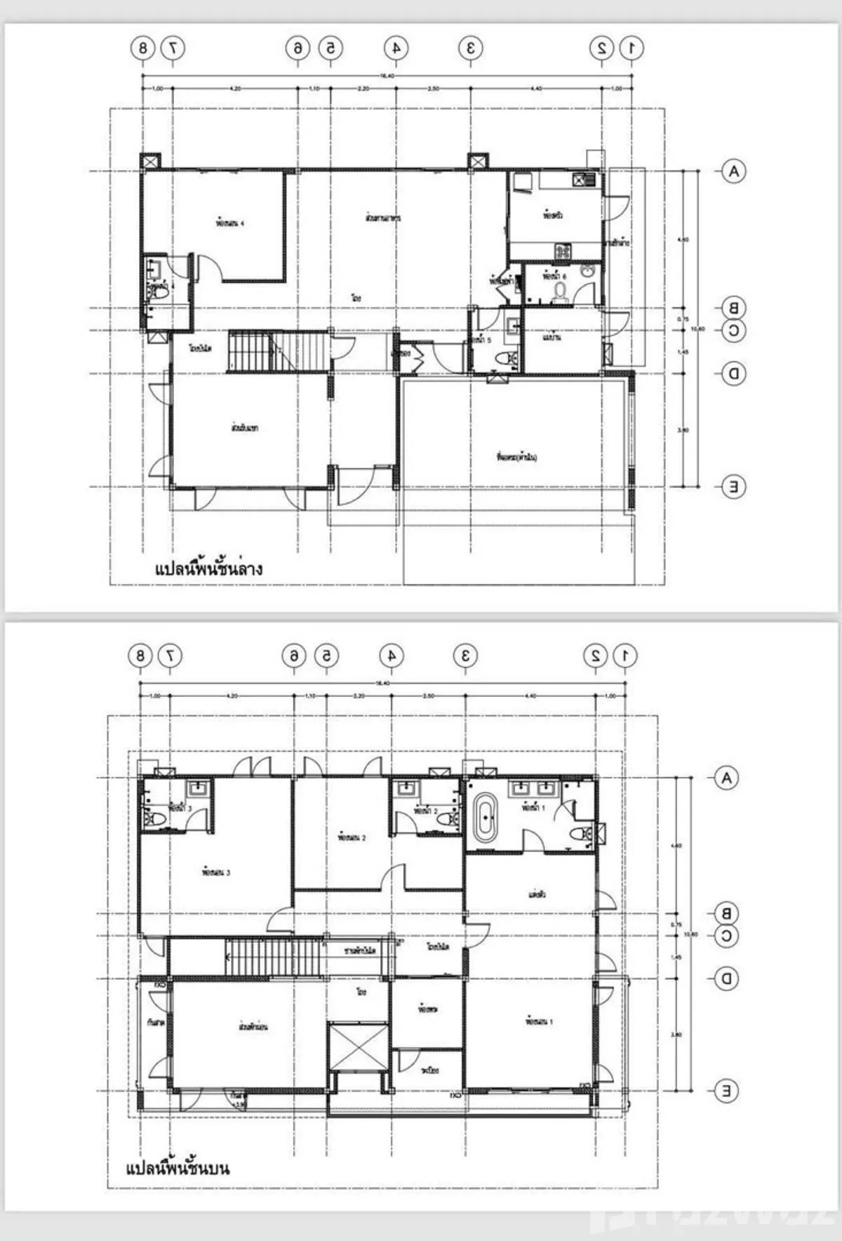
351 ตรม. พื้นที่ใช้สอย
2 ชั้น
พร้อมเข้าอยู่

ขาย บ้านเดี่ยว 5 ห้องนอน ในโครงการ The City Bangna (เดอะ ซิตี้ บางนา)

อสังหาริมทรัพย์นี้เป็น บ้านเดี่ยว สำหรับขาย ขนาด 5 ห้องนอน มีพื้นที่ใช้สอย 351 ตรม. ซึ่งยูนิตนี้อยู่ในโครงการ เดอะ ซิตี้ บางนา บนทำเลของ บางแก้ว, สมุทรปราการ ซึ่งคุณสามารถซื้อ บ้านเดี่ยว ได้ที่ราคา ฿21,900,000 (฿62,393/ตรม.) หรือทำสัญญาเช่าระยะยาว ที่ราคาค่าเช่า ฿200,000 ต่อเดือน

สิ่งอำนวยความสะดวกในบ้านเดี่ยวนี้

เข้าถึงสวนส่วนกลางได้เข้าถึงสวนส่วนกลางได้ เตาไมโครเวฟเตาไมโครเวฟ ทีวีทีวี

ข้อมูลทั่วไป

ลงประกาศเมื่อ 11 ธ.ค. 2568
อัพเดทล่าสุด 3 เดือนที่แล้ว
ประเภทอสังหาริมทรัพย์ บ้านเดี่ยว
จำนวนชั้น 2
ทำเลที่ตั้ง บางแก้ว, สมุทรปราการ
ห้องนอน 5
สถานที่ เมกะ บางนา -1.3 กม.
พื้นที่ใช้สอย 351 ตรม.
ราคาต่อตรม. ฿62,393
พื้นที่ใช้สอยภายนอก
เป็นการรวมขนาดของพื้นที่ก่อสร้างภายนอก เช่น สระว่ายน้ำ, ชานบ้าน, ที่จอดรถ และ ศาลา แต่จะไม่รวมพื้นที่สวนเข้าไปด้วย
312 ตรม.
ขนาดที่ดิน ไม่ระบุ
สัตว์เลี้ยง อนุญาตทุกชนิด
การถือครองบ้านเดี่ยว

ชาวต่างชาติสามารถถือครองกรรมสิทธิ์ในตัวอาคารสำหรับบ้านเดี่ยวในชื่อของตัวเองได้ แต่จะไม่สามารถถือครองกรรมสิทธิ์ในที่ดินที่ใช้ปลูกสร้างบ้านเดี่ยวได้

คนสัญชาติไทย
กรรมสิทธิ์ที่ดิน

ชาวต่างชาติไม่สามารถถือครองกรรมสิทธิ์ที่ดินในประเทศไทยได้ ดังนั้นจำเป็นต้องถือครองด้วยวิธีการถือสัญญาเช่าระยะยาว 30 ปี หรือว่าการซื้อที่ดินภายในชื่อของบริษัทจดทะเบียนเท่านั้น

คนสัญชาติไทย
ประเภทโฉนดที่ดิน โฉนดที่ดิน
สถานะการก่อสร้าง พร้อมเข้าอยู่
เฟอร์นิเจอร์
เป็นยูนิตที่ขายพร้อมกับเฟอร์นิเจอร์ครบชุด ที่เรียกได้ว่าเพียงแค่ยกกระเป๋าเสื้อผ้าเข้าไปก็สามารถอยู่อาศัยได้ทันที โดยมักจะมีเฟอร์นิเจอร์ตั้งแต่โซฟา ชั้นวางทีวี ในห้องรับแขก หรืออุปกรณ์เครื่องครัวทั้งหมด รวมไปถึงโต๊ะอาหาร ไล่เรียงไปยังเตียงนอนและตู้เสื้อผ้า ในห้องนอน (รายละเอียดปลีกย่อยอื่นๆ ขึ้นอยู่กับแต่ละยูนิต)
รวมเฟอร์นิเจอร์
วิวที่มองเห็น ไม่ระบุ
แบบบ้าน ไม่ระบุ
ที่จอดรถ (คัน) 3
ขนาดสระว่ายน้ำ ไม่ระบุ
ค่าส่วนกลาง (ต่อเดือน)
ค่าส่วนกลางนี้จะจ่ายให้กับนิติบุคคลของโครงการในทุก ๆ ปี เพื่อนำเงินเหล่านั้นไปบำรุงส่วนกลางต่าง ๆ ที่ลูกบ้านใช้ร่วมกัน อันได้แก่ สระว่ายน้ำ สวนหย่อม การทำความสะอาด อุปกรณ์ฟิตเนส ที่จอดรถ ค่าไฟ ค่าน้ำ ค่าเก็บขยะ ฯลฯ
ไม่ระบุ
ลงประกาศโดย
เจ้าของขายเอง
ค่าไฟ ไม่ระบุ
ค่าน้ำ ไม่ระบุ
เลขที่ยูนิต U5925455

โอกาสทางการลงทุน: ค่าธรรมเนียม และ ผลตอบแทน

ราคาขาย
฿21,900,000
ประกาศให้เช่า
฿200,000/เดือน
อัตราส่วนราคาต่อค่าเช่า
อัตราส่วนราคาต่อค่าเช่านั้นถูกคำนวณมาจากบ้านยูนิตนี้เอง โดยใช้ราคาที่ประกาศขายหารด้วยค่าเช่าจำนวน 12 เดือน
9
ผลตอบแทนการเช่า
เป็นผลตอบแทนการปล่อยเช่าทั้งหมด ที่ได้คำนวณจากค่าเช่ารายเดือน (สัญญาเช่าระยะ 1 ปี) และราคาขายปัจจุบัน
11%

รายละเอียดโครงการ

ชื่อโครงการ: เดอะ ซิตี้ บางนา
เจ้าของโครงการ: AP (Thailand)
สถานะการก่อสร้าง: สร้างเสร็จแล้ว (ม.ค. 2565)
ยูนิต: 167
พื้นที่ของโครงการ: ไม่ระบุ
สถานที่ เมกะ บางนา - 1.3 กม.
ทำเลที่ตั้ง: บางแก้ว, สมุทรปราการ
รายละเอียดของโครงการ เดอะ ซิตี้ บางนา

สิ่งอำนวยความสะดวกในโครงการ

สระว่ายน้ำ สระว่ายน้ำ
ห้องออกกำลังกาย ห้องออกกำลังกาย
สโมสร สโมสร
รปภ. 24ชั่วโมง รปภ. 24ชั่วโมง
กล้องวงจรปิด กล้องวงจรปิด
สวนหย่อม สวนหย่อม

ยูนิตที่เหลืออยู่ในโครงการ เดอะ ซิตี้ บางนา

ขาย 38 ให้เช่า 85
อัพเดทล่าสุด 1 เดือนที่แล้ว
ยูนิตที่เหลืออยู่ในโครงการ เดอะ ซิตี้ บางนา
฿24,000,000
฿68,376/ตรม.
ห้องนอน 6 ห้องนอน
ห้องน้ำ 6 ห้องน้ำ
ขนาด 351 ตรม. ขนาด
ขนาดที่ดิน 312 ตรม. ขนาดที่ดิน
รวมเฟอร์นิเจอร์ วิวสวน
อัพเดทล่าสุด 1 สัปดาห์ที่แล้ว
ยูนิตที่เหลืออยู่ในโครงการ เดอะ ซิตี้ บางนา
฿29,900,000
฿71,875/ตรม.
ห้องนอน 5 ห้องนอน
ห้องน้ำ 6 ห้องน้ำ
ขนาด 416 ตรม. ขนาด
ขนาดที่ดิน 352 ตรม. ขนาดที่ดิน
รวมเฟอร์นิเจอร์
ยูนิตที่เหลืออยู่ในโครงการ เดอะ ซิตี้ บางนา
฿23,000,000
฿73,482/ตรม.
ห้องนอน 4 ห้องนอน
ห้องน้ำ 5 ห้องน้ำ
ขนาด 313 ตรม. ขนาด
ขนาดที่ดิน - ขนาดที่ดิน
ไม่รวมเฟอร์นิเจอร์ วิวสวนสาธารณะ
อัพเดทล่าสุด 2 สัปดาห์ที่แล้ว
ยูนิตที่เหลืออยู่ในโครงการ เดอะ ซิตี้ บางนา
฿15,500,000
฿59,160/ตรม.
ห้องนอน 4 ห้องนอน
ห้องน้ำ 4 ห้องน้ำ
ขนาด 262 ตรม. ขนาด
ขนาดที่ดิน 260 ตรม. ขนาดที่ดิน
รวมเฟอร์นิเจอร์ วิวสวน
ยูนิตที่เหลืออยู่ในโครงการ เดอะ ซิตี้ บางนา
฿19,850,000
฿63,419/ตรม.
ห้องนอน 4 ห้องนอน
ห้องน้ำ 5 ห้องน้ำ
ขนาด 313 ตรม. ขนาด
ขนาดที่ดิน - ขนาดที่ดิน
รวมเฟอร์นิเจอร์ วิวเมือง
ยูนิตที่เหลืออยู่ในโครงการ เดอะ ซิตี้ บางนา
฿30,900,000฿31,000,000
฿74,279/ตรม.
ห้องนอน 5 ห้องนอน
ห้องน้ำ 6 ห้องน้ำ
ขนาด 416 ตรม. ขนาด
ขนาดที่ดิน 352 ตรม. ขนาดที่ดิน
รวมเฟอร์นิเจอร์ วิวเมือง
อัพเดทล่าสุด 1 เดือนที่แล้ว
ยูนิตที่เหลืออยู่ในโครงการ เดอะ ซิตี้ บางนา
฿39,900,000
฿113,675/ตรม.
ห้องนอน 4 ห้องนอน
ห้องน้ำ 5 ห้องน้ำ
ขนาด 351 ตรม. ขนาด
ขนาดที่ดิน - ขนาดที่ดิน
มีเฟอร์นิเจอร์บางส่วน วิวโล่งๆ
ยูนิตที่เหลืออยู่ในโครงการ เดอะ ซิตี้ บางนา
฿21,900,000
฿62,393/ตรม.
ห้องนอน 5 ห้องนอน
ห้องน้ำ 5 ห้องน้ำ
ขนาด 351 ตรม. ขนาด
ขนาดที่ดิน - ขนาดที่ดิน
รวมเฟอร์นิเจอร์
อัพเดทล่าสุด 1 เดือนที่แล้ว
ยูนิตที่เหลืออยู่ในโครงการ เดอะ ซิตี้ บางนา
฿21,900,000
฿62,393/ตรม.
ห้องนอน 5 ห้องนอน
ห้องน้ำ 5 ห้องน้ำ
ขนาด 351 ตรม. ขนาด
ขนาดที่ดิน 312 ตรม. ขนาดที่ดิน
รวมเฟอร์นิเจอร์
ยูนิตที่เหลืออยู่ในโครงการ เดอะ ซิตี้ บางนา
฿25,500,000
฿61,298/ตรม.
ห้องนอน 5 ห้องนอน
ห้องน้ำ 6 ห้องน้ำ
ขนาด 416 ตรม. ขนาด
ขนาดที่ดิน 361 ตรม. ขนาดที่ดิน
ไม่รวมเฟอร์นิเจอร์ วิวสวน
ยูนิตที่เหลืออยู่ในโครงการ เดอะ ซิตี้ บางนา
฿26,500,000
฿63,702/ตรม.
ห้องนอน 5 ห้องนอน
ห้องน้ำ 6 ห้องน้ำ
ขนาด 416 ตรม. ขนาด
ขนาดที่ดิน 420 ตรม. ขนาดที่ดิน
ไม่รวมเฟอร์นิเจอร์ วิวสวน
ยูนิตที่เหลืออยู่ในโครงการ เดอะ ซิตี้ บางนา
฿25,000,000
฿60,096/ตรม.
ห้องนอน 5 ห้องนอน
ห้องน้ำ 6 ห้องน้ำ
ขนาด 416 ตรม. ขนาด
ขนาดที่ดิน 342 ตรม. ขนาดที่ดิน
ไม่รวมเฟอร์นิเจอร์ วิวสวน
ยูนิตที่เหลืออยู่ในโครงการ เดอะ ซิตี้ บางนา
฿29,000,000
฿82,621/ตรม.
ห้องนอน 4 ห้องนอน
ห้องน้ำ 5 ห้องน้ำ
ขนาด 351 ตรม. ขนาด
ขนาดที่ดิน 312 ตรม. ขนาดที่ดิน
รวมเฟอร์นิเจอร์ วิวเมือง
ยูนิตที่เหลืออยู่ในโครงการ เดอะ ซิตี้ บางนา
฿26,500,000
฿63,702/ตรม.
ห้องนอน 5 ห้องนอน
ห้องน้ำ 6 ห้องน้ำ
ขนาด 416 ตรม. ขนาด
ขนาดที่ดิน 397 ตรม. ขนาดที่ดิน
ไม่รวมเฟอร์นิเจอร์ วิวสวน
ยูนิตที่เหลืออยู่ในโครงการ เดอะ ซิตี้ บางนา
฿26,500,000
฿63,702/ตรม.
ห้องนอน 5 ห้องนอน
ห้องน้ำ 6 ห้องน้ำ
ขนาด 416 ตรม. ขนาด
ขนาดที่ดิน 404 ตรม. ขนาดที่ดิน
ไม่รวมเฟอร์นิเจอร์ วิวสวน
ยูนิตที่เหลืออยู่ในโครงการ เดอะ ซิตี้ บางนา
฿26,900,000
฿76,638/ตรม.
ห้องนอน 4 ห้องนอน
ห้องน้ำ 5 ห้องน้ำ
ขนาด 351 ตรม. ขนาด
ขนาดที่ดิน - ขนาดที่ดิน
รวมเฟอร์นิเจอร์ วิวสวน
ยูนิตที่เหลืออยู่ในโครงการ เดอะ ซิตี้ บางนา
฿20,900,000
฿73,333/ตรม.
ห้องนอน 4 ห้องนอน
ห้องน้ำ 5 ห้องน้ำ
ขนาด 285 ตรม. ขนาด
ขนาดที่ดิน 533 ตรม. ขนาดที่ดิน
รวมเฟอร์นิเจอร์ วิวโล่งๆ
ยูนิตที่เหลืออยู่ในโครงการ เดอะ ซิตี้ บางนา
฿29,900,000
฿71,875/ตรม.
ห้องนอน 5 ห้องนอน
ห้องน้ำ 6 ห้องน้ำ
ขนาด 416 ตรม. ขนาด
ขนาดที่ดิน 352 ตรม. ขนาดที่ดิน
รวมเฟอร์นิเจอร์ วิวสวน
ยูนิตที่เหลืออยู่ในโครงการ เดอะ ซิตี้ บางนา
฿22,000,000
฿70,288/ตรม.
ห้องนอน 4 ห้องนอน
ห้องน้ำ 5 ห้องน้ำ
ขนาด 313 ตรม. ขนาด
ขนาดที่ดิน 280 ตรม. ขนาดที่ดิน
รวมเฟอร์นิเจอร์ วิวโล่งๆ
ยูนิตที่เหลืออยู่ในโครงการ เดอะ ซิตี้ บางนา
฿24,900,000
฿88,298/ตรม.
ห้องนอน 4 ห้องนอน
ห้องน้ำ 5 ห้องน้ำ
ขนาด 282 ตรม. ขนาด
ขนาดที่ดิน 260 ตรม. ขนาดที่ดิน
รวมเฟอร์นิเจอร์
ยูนิตที่เหลืออยู่ในโครงการ เดอะ ซิตี้ บางนา
฿32,900,000
฿105,112/ตรม.
ห้องนอน 4 ห้องนอน
ห้องน้ำ 5 ห้องน้ำ
ขนาด 313 ตรม. ขนาด
ขนาดที่ดิน - ขนาดที่ดิน
รวมเฟอร์นิเจอร์ วิวโล่งๆ
ยูนิตที่เหลืออยู่ในโครงการ เดอะ ซิตี้ บางนา
฿27,000,000
฿86,262/ตรม.
ห้องนอน 4 ห้องนอน
ห้องน้ำ 5 ห้องน้ำ
ขนาด 313 ตรม. ขนาด
ขนาดที่ดิน 280 ตรม. ขนาดที่ดิน
รวมเฟอร์นิเจอร์ วิวเมือง
ยูนิตที่เหลืออยู่ในโครงการ เดอะ ซิตี้ บางนา
฿33,000,000
฿95,652/ตรม.
ห้องนอน 5 ห้องนอน
ห้องน้ำ 6 ห้องน้ำ
ขนาด 345 ตรม. ขนาด
ขนาดที่ดิน 416 ตรม. ขนาดที่ดิน
รวมเฟอร์นิเจอร์ วิวโล่งๆ
ยูนิตที่เหลืออยู่ในโครงการ เดอะ ซิตี้ บางนา
฿29,900,000
฿95,527/ตรม.
ห้องนอน 4 ห้องนอน
ห้องน้ำ 5 ห้องน้ำ
ขนาด 313 ตรม. ขนาด
ขนาดที่ดิน - ขนาดที่ดิน
รวมเฟอร์นิเจอร์ วิวสวน
ยูนิตที่เหลืออยู่ในโครงการ เดอะ ซิตี้ บางนา
฿23,900,000
฿63,733/ตรม.
ห้องนอน 5 ห้องนอน
ห้องน้ำ 6 ห้องน้ำ
ขนาด 375 ตรม. ขนาด
ขนาดที่ดิน 536 ตรม. ขนาดที่ดิน
รวมเฟอร์นิเจอร์ วิวสวน
ยูนิตที่เหลืออยู่ในโครงการ เดอะ ซิตี้ บางนา
฿26,000,000
฿62,500/ตรม.
ห้องนอน 5 ห้องนอน
ห้องน้ำ 6 ห้องน้ำ
ขนาด 416 ตรม. ขนาด
ขนาดที่ดิน 367 ตรม. ขนาดที่ดิน
รวมเฟอร์นิเจอร์ วิวสวน
ยูนิตที่เหลืออยู่ในโครงการ เดอะ ซิตี้ บางนา
฿23,000,000
฿55,288/ตรม.
ห้องนอน 5 ห้องนอน
ห้องน้ำ 6 ห้องน้ำ
ขนาด 416 ตรม. ขนาด
ขนาดที่ดิน 342.80 ตรม. ขนาดที่ดิน
ไม่รวมเฟอร์นิเจอร์ วิวสวน
ยูนิตที่เหลืออยู่ในโครงการ เดอะ ซิตี้ บางนา
฿24,900,000
฿88,298/ตรม.
ห้องนอน 4 ห้องนอน
ห้องน้ำ 5 ห้องน้ำ
ขนาด 282 ตรม. ขนาด
ขนาดที่ดิน 260 ตรม. ขนาดที่ดิน
รวมเฟอร์นิเจอร์ วิวเมือง
ยูนิตที่เหลืออยู่ในโครงการ เดอะ ซิตี้ บางนา
฿21,800,000
฿69,649/ตรม.
ห้องนอน 4 ห้องนอน
ห้องน้ำ 5 ห้องน้ำ
ขนาด 313 ตรม. ขนาด
ขนาดที่ดิน 308 ตรม. ขนาดที่ดิน
รวมเฟอร์นิเจอร์ วิวภูเขา
ยูนิตที่เหลืออยู่ในโครงการ เดอะ ซิตี้ บางนา
฿20,900,000
฿73,333/ตรม.
ห้องนอน 4 ห้องนอน
ห้องน้ำ 5 ห้องน้ำ
ขนาด 285 ตรม. ขนาด
ขนาดที่ดิน - ขนาดที่ดิน
มีเฟอร์นิเจอร์บางส่วน วิวโล่งๆ
สร้างการแจ้งเตือนเมื่อมีประกาศใหม่เพิ่มเข้ามาในโครงการ เดอะ ซิตี้ บางนา
ดูทั้งหมด (38)

การคำนวณสินเชื่อ

คำถามที่พบบ่อย

โครงการ เดอะ ซิตี้ บางนา อนุญาตให้นำสัตว์เข้ามาเลี้ยงได้ทุกชนิด รวมถึง สุนัข, แมว, กระต่าย, หนูแฮมสเตอร์, หนูตะเภา, นก และสัตว์เลื้อยคลานต่างๆ
เมกะ บางนา เป็นศูนย์การค้าที่ใกล้ที่สุด โดยห่างจากโครงการ เดอะ ซิตี้ บางนา ไปประมาณ 1.3 กม.

หากคนไทยแต่งงานกับชาวต่างชาติ แล้วต้องการจะซื้อบ้านหรือที่ดิน แล้วทำการโอนกรรมสิทธิ์ในชื่อของคู่สมรสชาวต่างชาตินั้น ตามกฎหมายไทยจะไม่ให้ชาวต่างชาติ ถือครองที่ดินในประเทศไทยได้ ดังนั้นจึงเป็นไปไม่ได้

แต่หากมีความยินยอมระหว่างกันก็สามารถโอนเป็นชื่อคู่สมรสคนไทยได้ตามปรกติ โดยจะมีความซับซ้อนขึ้นอีกเล็กน้อย แบ่งเป็นกรณี

1. "คู่สมรสชาวต่างชาติเตินทางไปที่กรมที่ดินด้วยไม่ได้" จะไม่สามารถใช้เอกสารมอบอำนาจแบบคนไทยได้ แต่จะต้องขอบันทึกถ้อยคำรับรองว่าเงินทั้งหมดที่นำมาซื้อบ้านหรือที่ดินนี้ เป็นทรัพย์สินส่วนตัว ไม่ใช่สินสมรส และให้หน่วยงาน เช่น สถานเอกอัครราชทูต สถานกงสุล หรือโนตารีพับลิค ทำการรับรองว่าทั้งคู่เป็นสามี ภรรยาจริง และให้คู่สมรสคนไทยนำเอกสารรับรอง (เอกสารตัวจริง) ไปดำเนินการต่อที่กรมที่ดินเองต่อไป 

2. "หากคู่สมรสชาวต่างชาติสามารถเดินทางไปพร้อมกับคนไทยที่เป็นคู่สมรสได้" ก็แค่ยินดีเซ็นรับรองว่าบ้านหรือที่ดินแปลงที่กำลังจะซื้อกันนี้ จะตกเป็นกรรมสิทธิ์ของคู่สมรสคนไทยเพียงฝ่ายเดียวเท่านั้น

หากคุณได้เข้าเยี่ยมชมโครงการ เดอะ ซิตี้ บางนา และตัดสินใจเลือกยูนิตที่ต้องการแล้ว คุณต้องเตรียมตัวกับเรื่องต่าง ๆ ดังต่อไปนี้

- โอนเงินมัดจำการจอง
- ทำสัญญาตกลงซื้อขาย (อาจจะมีการชำระเงินเพิ่มบางส่วน)
- ผ่อนชำระเงินดาวน์ตามงวดที่ตกลง (ถ้ามี)
- ทำเรื่องเอกสารเพื่อขอกู้ยืมกับธนาคาร
- กำหนดการตรวจรับบ้าน
- หากพบเจอปัญหาการตรวจรับ ให้ลงรายการและแจ้งโครงการให้แก้ไข
- ตรวจรับบ้านรอบสุดท้าย
- กำหนดการโอนกรรมสิทธิ์ และ เซ็นสัญญากู้ยืมกับธนาคาร

ในสภาพเศรษฐกิจปัจจุบัน ทำให้หลายคนมองหาการซื้อคอนโดมือสอง เพื่อเป็นที่อยู่อาศัยกันมากขึ้น เนื่องด้วยเหตุปัจจัยหลายอย่าง ดังนี้

1. คอนโดมือสองนั้น มีราคาที่ถูกกว่าคอนโดมือหนึ่งในยุคนี้อย่างเห็นได้ชัด หากเทียบกับขนาดห้อง และทำเลที่ใกล้เคียงกัน
2. ได้เห็นบรรยากาศโดยรอบทั้งภายใน และภายนอกโครงการได้อย่างชัดเจน ทำให้ประเมินการใช้ชีวิต หากต้องอยู่ที่นี่ได้ง่ายขึ้น
3. มีโอกาสได้ทำเลที่ตั้งที่ดีกว่าคอนโดมือหนึ่ง เพราะนับวันพื้นที่ในทำเลดีๆ หาได้ยากยิ่งนักและมีราคาสูงมาก แต่ต้องยอมรับกับสภาพและอายุการก่อสร้างของคอนโดมือสองให้ได้ด้วยเช่นกัน
4. ส่วนใหญ่แล้วคอนโดมือสองจะถูกตกแต่ง หรือ Built In เฟอร์นิเจอร์อย่างครบถ้วนแล้ว จึงสามารถย้ายเข้าอยู่ได้ทันที
5. วัสดุที่ใช้ในการก่อสร้างคอนโดมือสองหลายโครงการมีคุณภาพดีกว่า เนื่องจากราคาของวัสดุในช่วงที่ก่อสร้างอาจจะไม่ได้สูงเท่ากับในยุคนี้ ทำให้ผู้ประกอบการเลือกใช้วัสดุคุณภาพสูง

รีวิวโครงการ

4.9 จาก 5
จากทั้งหมด
1 รีวิว
การดูแลรักษา
ระบบรักษาความปลอดภัย
สิ่งอำนวยความสะดวกต่าง ๆ
คุณภาพของวัสดุก่อสร้างและตกแต่ง
ความคุ้มค่า
ทำเลที่ตั้งของโครงการ
+ เขียนรีวิว
ทำเลดี ลักษณะทรัพย์สิน และชุมชน
May, ไทย, ผู้พักอาศัยปัจจุบัน, 1 ปีที่แล้ว
บ้านเดี่ยวแห่งนี้ตั้งอยู่ใกล้กับเมกะบางนาซึ่งเป็นศูนย์การค้าที่โดดเด่น ผสมผสานความสะดวกสบายและการเข้าถึงได้ ตั้งอยู่ใกล้สนามบินสุวรรณภูมิและรายล้อมไปด้วยสิ่งอำนวยความสะดวก เช่น โรงเรียนนานาชาติ และทางด่วนสายสำคัญ เหมาะสำหรับครอบครัวและมืออาชีพที่ต้องการความสะดวกสบายและการเชื่อมต่อ บ้านเดี่ยวใกล้เมกาบางนาแห่งนี้ มอบโอกาสที่ดีเยี่ยมสำหรับผู้ที่กำลังมองหาสภาพแวดล้อมการใช้ชีวิตที่เชื่อมต่อกันและสะดวกสบาย ทำเลที่ตั้งใกล้สนามบิน ควบคู่ไปกับโรงเรียนนานาชาติและทางด่วนสายหลัก มั่นใจทั้งความสะดวกสบายและคุณภาพชีวิต ไม่ว่าจะเป็นสำหรับครอบครัวหรือบุคคลทั่วไป ที่พักแห่งนี้รวบรวมแก่นแท้ของการใช้ชีวิตในเมืองสมัยใหม่พร้อมสัมผัสแห่งความเงียบสงบ สำหรับผู้ที่ให้ความสำคัญกับสถานที่และการเข้าถึงโดยไม่กระทบต่อความสะดวกสบาย โอกาสในการเช่านี้สัญญาว่าจะเกินความคาดหมาย
สมุทรปราการ
บางแก้ว

เรื่องควรรู้ รอบๆโครงการนี้

ระยะทางจากโครงการไปสถานที่สำคัญ

สตรีท วิว

โครงการอื่น ใกล้ๆกับ เดอะ ซิตี้ บางนา

ทำเลที่ตั้ง
จำนวนยูนิต
ราคา
ค่าเช่าต่อเดือน
ปีที่แล้วเสร็จ
สถานะของโครงการ
ชื่อโครงการ
ทำเลที่ตั้ง
จำนวนยูนิต
ราคา
ค่าเช่าต่อเดือน
ปีที่แล้วเสร็จ
สถานะของโครงการ
ทำเลที่ตั้ง
บางแก้ว, บางพลี, สมุทรปราการ
จำนวนยูนิต
54
ราคา
฿1.22M - ฿12.2M
ค่าเช่าต่อเดือน
฿48.8K - ฿94.7K
ปีที่แล้วเสร็จ
พ.ค. 2566
สถานะของโครงการ
สร้างเสร็จแล้ว
ทำเลที่ตั้ง
บางแก้ว, บางพลี, สมุทรปราการ
จำนวนยูนิต
118
ราคา
฿7.92M - ฿11.9M
▼ -18% ต่ำกว่าราคาตลาด
ค่าเช่าต่อเดือน
฿41.8K - ฿59.8K
ปีที่แล้วเสร็จ
ธ.ค. 2559
สถานะของโครงการ
สร้างเสร็จแล้ว
ชื่อโครงการ
อินดี้ 4 บางนา กม.7
ทำเลที่ตั้ง
บางแก้ว, บางพลี, สมุทรปราการ
จำนวนยูนิต
136
ราคา
฿3.99M - ฿4.09M
ค่าเช่าต่อเดือน
฿23.9K - ฿54.8K
ปีที่แล้วเสร็จ
ก.พ. 2565
สถานะของโครงการ
สร้างเสร็จแล้ว
ชื่อโครงการ
เซนโทร บางนา
ทำเลที่ตั้ง
บางแก้ว, บางพลี, สมุทรปราการ
จำนวนยูนิต
382
ราคา
฿8.87M - ฿21.7M
ค่าเช่าต่อเดือน
฿64.8K - ฿249K
ปีที่แล้วเสร็จ
พ.ค. 2566
สถานะของโครงการ
สร้างเสร็จแล้ว
ทำเลที่ตั้ง
บางพลีใหญ่, บางพลี, สมุทรปราการ
จำนวนยูนิต
ไม่ระบุ
ราคา
฿11.8M - ฿12.5M
ค่าเช่าต่อเดือน
฿38.9K - ฿94.7K
ปีที่แล้วเสร็จ
ไม่ระบุ
สถานะของโครงการ
กำลังก่อสร้าง
ชื่อโครงการ
เดอะ ซิตี้ บางนา 2
ทำเลที่ตั้ง
บางพลีใหญ่, บางพลี, สมุทรปราการ
จำนวนยูนิต
162
ราคา
฿21.8M - ฿47.8M
ค่าเช่าต่อเดือน
฿154K - ฿548K
ปีที่แล้วเสร็จ
พ.ค. 2567
สถานะของโครงการ
สร้างเสร็จแล้ว
ทำเลที่ตั้ง
บางแก้ว, บางพลี, สมุทรปราการ
จำนวนยูนิต
51
ราคา
฿16.9M - ฿58.8M
ค่าเช่าต่อเดือน
฿27.9K - ฿169K
ปีที่แล้วเสร็จ
พ.ย. 2560
สถานะของโครงการ
สร้างเสร็จแล้ว
ทำเลที่ตั้ง
บางแก้ว, บางพลี, สมุทรปราการ
จำนวนยูนิต
225
ราคา
฿2.78M - ฿3.98M
ค่าเช่าต่อเดือน
฿15.9K - ฿19.9K
ปีที่แล้วเสร็จ
ม.ค. 2557
สถานะของโครงการ
สร้างเสร็จแล้ว
ทำเลที่ตั้ง
บางแก้ว, บางพลี, สมุทรปราการ
จำนวนยูนิต
243
ราคา
฿5.38M
ค่าเช่าต่อเดือน
฿31.9K - ฿68.7K
ปีที่แล้วเสร็จ
ม.ค. 2567
สถานะของโครงการ
สร้างเสร็จแล้ว
ทำเลที่ตั้ง
บางแก้ว, บางพลี, สมุทรปราการ
จำนวนยูนิต
235
ราคา
฿8.47M - ฿23.9M
▼ -15% ต่ำกว่าราคาตลาด
ค่าเช่าต่อเดือน
฿49.8K - ฿54.8K
ปีที่แล้วเสร็จ
ธ.ค. 2560
สถานะของโครงการ
สร้างเสร็จแล้ว
กลับสู่ด้านบน
  • Fazwaz Group Sites