- ลงประกาศฟรี
- สมัครสมาชิก / เข้าสู่ระบบ
-
ภาษาไทย- th
-
THB - ฿
- ซื้อ
- ประเภทอสังหาฯใน กรุงเทพมหานคร
- กรุงเทพมหานคร
- ดูประกาศล่าสุด
- ซื้อบ้านกับ Klung Baan ดีอย่างไร?
- เช่า
- ขาย
- สินเชื่อ
- โครงการทั้งหมด
🔥 เจ้าของขายเอง! ทาวน์โฮม 3 ชั้น บ้านกลางเมือง ศรีนครินทร์-อ่อนนุช (แปลงมุม ตำแหน่งดีที่สุด)
📍 ราคาพิเศษ: 6,390,000 บาท (ราคาคุยกันได้ เจ้าของใจดีค่ะ)
✨ ทำไมต้องซื้อบ้านหลังนี้? (จุดเด่นที่เหนือกว่าหลังอื่น):
ตำแหน่งสุดแรร์ (Rare Item): เป็นบ้าน "แปลงมุม" ด้านซ้ายมือติดอาคารนิติบุคคล ได้ความเป็นส่วนตัวสูงมาก เงียบสงบ และปลอดภัยขั้นสุด
ต่อเติมคุ้มค่า (ประหยัดไปกว่า 3 แสน!): ต่อเติมครัวปิดและห้องน้ำด้านหลัง ลงเสาเข็มอย่างดี โครงสร้างแน่นหนา ไม่ต้องปวดหัวหาช่างมาทำเอง
ฮวงจุ้ยเศรษฐี: มีการต่อเติม "ห้องเก็บทรัพย์" ตามหลักซาจูและซินแสฮวงจุ้ย อยู่แล้วรวย รับทรัพย์
ทำเลศักยภาพ: โครงการเข้า-ออกได้ทั้ง ซ.อ่อนนุช 70/1 และ ถ.พัฒนาการตัดใหม่ ใกล้ Mini Big C, Lotus Express, ตลาดเอี่ยมสมบัติ และซีคอนสแควร์
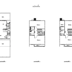
🏠 รายละเอียดตัวบ้าน:
แบบบ้านหน้ากว้าง 5 เมตร จอดรถได้ 2 คัน
ขนาดที่ดิน 19 ตร.ว. / พื้นที่ใช้สอย 141 ตร.ม.
ฟังก์ชัน: 3 ห้องนอน (วางเตียงใหญ่ได้ทุกห้อง) / 3 ห้องน้ำ / 1 ห้องอเนกประสงค์ชั้นบน
ของแถม: แอร์ 2 เครื่อง และ ตู้เย็น (สภาพดีพร้อมใช้งาน)
⚠️ หมายเหตุ (อ่านก่อนนัดดูบ้าน): บ้านขายตามสภาพ โครงสร้างหลักแข็งแรงมาก แต่อาจมีร่องรอยตามกาลเวลาและคราบน้ำบ้างบางจุด เนื่องจากเจ้าของกำลังเตรียมตัวย้ายไปต่างประเทศ จึงเคลียร์บ้านเป็นบ้านโล่งๆ ราคานี้ลดเผื่อให้ลูกค้านำงบส่วนต่างไปรีโนเวท เก็บงานสี และตกแต่งใหม่ตามสไตล์คุณได้เลยค่ะ! (หรือหากลูกค้าถูกใจ ยินดีคุยเรื่องเงื่อนไขการเก็บงานซ่อมแซมให้ก่อนโอนค่ะ)
📞 สนใจนัดชมบ้านจริง หรือสอบถามเพิ่มเติม:
โทร: 0963549659
Line ID: Tawnybs
ชาวต่างชาติสามารถถือครองกรรมสิทธิ์ในตัวอาคารสำหรับทาวน์เฮ้าส์ในชื่อของตัวเองได้ แต่จะไม่สามารถถือครองกรรมสิทธิ์ในที่ดินที่ใช้ปลูกสร้างทาวน์เฮ้าส์ได้
ชาวต่างชาติไม่สามารถถือครองกรรมสิทธิ์ที่ดินในประเทศไทยได้ ดังนั้นจำเป็นต้องถือครองด้วยวิธีการถือสัญญาเช่าระยะยาว 30 ปี หรือว่าการซื้อที่ดินภายในชื่อของบริษัทจดทะเบียนเท่านั้น
ลงประกาศฟรีกับเรา — เพื่อได้สิทธิประโยชน์แบบหาที่ไหนไม่ได้ โดยไม่ต้องจ่ายเพิ่มใดๆ ซึ่งเราจะแชร์ประกาศของคุณไปที่เว็บไซต์ชั้นนำกว่า 10 เว็บไซต์ และมีเจ้าหน้าที่ช่วยให้คำแนะนำเฉพาะตัวคุณอีกด้วย

หากคนไทยแต่งงานกับชาวต่างชาติ แล้วต้องการจะซื้อบ้านหรือที่ดิน แล้วทำการโอนกรรมสิทธิ์ในชื่อของคู่สมรสชาวต่างชาตินั้น ตามกฎหมายไทยจะไม่ให้ชาวต่างชาติ ถือครองที่ดินในประเทศไทยได้ ดังนั้นจึงเป็นไปไม่ได้
แต่หากมีความยินยอมระหว่างกันก็สามารถโอนเป็นชื่อคู่สมรสคนไทยได้ตามปรกติ โดยจะมีความซับซ้อนขึ้นอีกเล็กน้อย แบ่งเป็นกรณี
1. "คู่สมรสชาวต่างชาติเตินทางไปที่กรมที่ดินด้วยไม่ได้" จะไม่สามารถใช้เอกสารมอบอำนาจแบบคนไทยได้ แต่จะต้องขอบันทึกถ้อยคำรับรองว่าเงินทั้งหมดที่นำมาซื้อบ้านหรือที่ดินนี้ เป็นทรัพย์สินส่วนตัว ไม่ใช่สินสมรส และให้หน่วยงาน เช่น สถานเอกอัครราชทูต สถานกงสุล หรือโนตารีพับลิค ทำการรับรองว่าทั้งคู่เป็นสามี ภรรยาจริง และให้คู่สมรสคนไทยนำเอกสารรับรอง (เอกสารตัวจริง) ไปดำเนินการต่อที่กรมที่ดินเองต่อไป
2. "หากคู่สมรสชาวต่างชาติสามารถเดินทางไปพร้อมกับคนไทยที่เป็นคู่สมรสได้" ก็แค่ยินดีเซ็นรับรองว่าบ้านหรือที่ดินแปลงที่กำลังจะซื้อกันนี้ จะตกเป็นกรรมสิทธิ์ของคู่สมรสคนไทยเพียงฝ่ายเดียวเท่านั้น
หากคุณได้เข้าเยี่ยมชมโครงการ บ้านกลางเมือง ศรีนครินทร์-อ่อนนุช และตัดสินใจเลือกยูนิตที่ต้องการแล้ว คุณต้องเตรียมตัวกับเรื่องต่าง ๆ ดังต่อไปนี้
- โอนเงินมัดจำการจอง
- ทำสัญญาตกลงซื้อขาย (อาจจะมีการชำระเงินเพิ่มบางส่วน)
- ผ่อนชำระเงินดาวน์ตามงวดที่ตกลง (ถ้ามี)
- ทำเรื่องเอกสารเพื่อขอกู้ยืมกับธนาคาร
- กำหนดการตรวจรับบ้าน
- หากพบเจอปัญหาการตรวจรับ ให้ลงรายการและแจ้งโครงการให้แก้ไข
- ตรวจรับบ้านรอบสุดท้าย
- กำหนดการโอนกรรมสิทธิ์ และ เซ็นสัญญากู้ยืมกับธนาคาร
หากอยากกู้ซื้อบ้าน หรือ คอนโด ให้ผ่านการพิจารณาจากธนาคารง่ายๆ ควรวางแผนให้กับตัวเองดังนี้
1. พยายามเคลียร์หนี้สินให้หมดก่อน
- เพราะธนาคารจะนำตัวเลขหนี้สินเหล่านั้นมาเป็นส่วนพิจารณาด้วย คุณจึงควรจัดการหนี้สินเหล่านั้นให้หมดเรียบร้อยก่อน หรือ ทำให้จำนวนงวดผ่อนเหลือน้อยที่สุดก่อน จะเป็นการง่ายต่อการพิจารณาสินเชื่อ
2. พยายามทำตัวเลขเดินบัญชี Statement ให้ดูดี
- สิ่งที่ควรดำเนินการควบคู่ไปกับการลดตัวเลขหนี้สิน คือการมีตัวเลขในบัญชีที่ดูดีไปด้วย หรือที่เรียกกันว่า การเดินรายการบัญชี (เดิน Statement) เพราะเป็นส่วนที่ธนาคารจะนำมาพิจารณาย้อนหลัง อาจจะดูตัวเลขย้อนหลัง 6-12 เดือน
3. มีเงินดาวน์บ้านเอาไว้สักก้อน
- หากคุณเริ่มมองหาบ้านสักหลังไว้แล้ว คุณควรจะมีเงินดาวน์ไว้ช่วยทำให้ทางธนาคารสามารถปล่อยสินเชื่อส่วนที่เหลือให้ได้สูงขึ้น และ ง่ายขึ้น อาจจะสัก 5-20% ขึ้นอยู่กับโครงการ และ สายอาชีพและแหล่งรายได้ของผู้กู้เองด้วย
ในยุคปัจจุบัน พบว่ามีผู้ที่สนใจซื้อบ้านมือสองเพิ่มขึ้นเป็นจำนวนที่มากขึ้น เพราะด้วยหลายๆเหตุผลที่ต้องการ ทั้งยังอยากใกล้ชิดกับครอบครัว ใกล้สถานศึกษา โรงพยาบาล และอยากใช้ชีวิตสะดวกมากขึ้น ซึ่งการจะให้ได้บ้านในลักษณะนี้ จำเป็นต้องเพิ่มทางเลือกให้มากขึ้น ด้วยการมองไปที่บ้านมือสอง ซึ่งข้อดีของบ้านมือสองมีอะไรบ้าง ลองพิจารณาจาก 5 เหตุผลนี้
1. ราคาที่เข้าถึงได้
- บ้านมือสองมักมีราคาที่เข้าถึงได้มากกว่าบ้านใหม่ในทำเลเดียวกัน และยังสามารถต่อรองราคาได้สูงอีกด้วย
2. ได้เห็นปัญหาของบ้าน
- ท่านจะสามารถรู้ถึงปัญหาที่อาจเกิดขึ้น หรือ กำลังเกิดขึ้นอยู่ในขณะนั้น เช่น ท่อตัน, หลังคารั่ว พื้นหรือกำแพงทรุด ซึ่งนำไปพิจาณาว่าจะซ่อม หรือ มองหลังอื่นแทน
3. วัสดุคุณภาพ
- บ้านมือสองที่มีอายุมากขึ้น มักมีคุณภาพของวัสดุที่ดีกว่าบ้านมือ 1 เช่น เสา-คานที่แข็งแรงมากกว่า เพราะพิสูจน์จากการผ่านมาหลายฝน หลายหนาวมาแล้ว
4. เข้าอยู่ได้ทันที
- บ้านมือสองมักพร้อมเข้าอยู่ทันทีหลังการซื้อ ไม่ต้องรอให้การก่อสร้างเสร็จสมบูรณ์ อีกทั้งยังอาจจะไม่ต้องซื้อของเข้าบ้านเพิ่มเติม จากบ้านที่ขายพร้อมเฟอร์นิเจอร์
5. การสำรวจสภาพแวดล้อม
- ท่านจะมีโอกาสสำรวจและเรียนรู้เกี่ยวกับสภาพแวดล้อมและชุมชนโดยรอบก่อนที่จะตัดสินใจซื้อ ทั้งเรื่องของเพื่อนบ้าน, สิ่งอำนวยความสะดวก, และปัจจัยอื่น ๆ ที่มีผลต่อคุณภาพชีวิตของท่าน