ขายอาคารพาณิชย์ 3 คูหา พร้อมกิจการสตูดิโอให้เช่า

บางบอน, บางบอน,กรุงเทพมหานคร
เลขที่ยูนิต: U5664319
สตูดิโอ ห้องนอน
9 ห้องน้ำ
1,110 ตรม. พื้นที่ใช้สอย
5 ชั้น
ต.ค. 2534 สร้างเสร็จแล้ว

ขายทาวน์เฮ้าส์ สตูดิโอ ในทำเล บางบอน, กรุงเทพมหานคร

อสังหาริมทรัพย์นี้เป็น ทาวน์เฮ้าส์ สำหรับขาย แบบ สตูดิโอ มีพื้นที่ใช้สอย 1,110 ตรม. อยู่ในทำเล บางบอน, กรุงเทพมหานคร และสร้างเสร็จแล้วเมื่อ ต.ค. 2534 ซึ่งคุณสามารถซื้อ ทาวน์เฮ้าส์ นี้ได้ที่ราคา ฿50,000,000 (฿45,045/ตรม.)

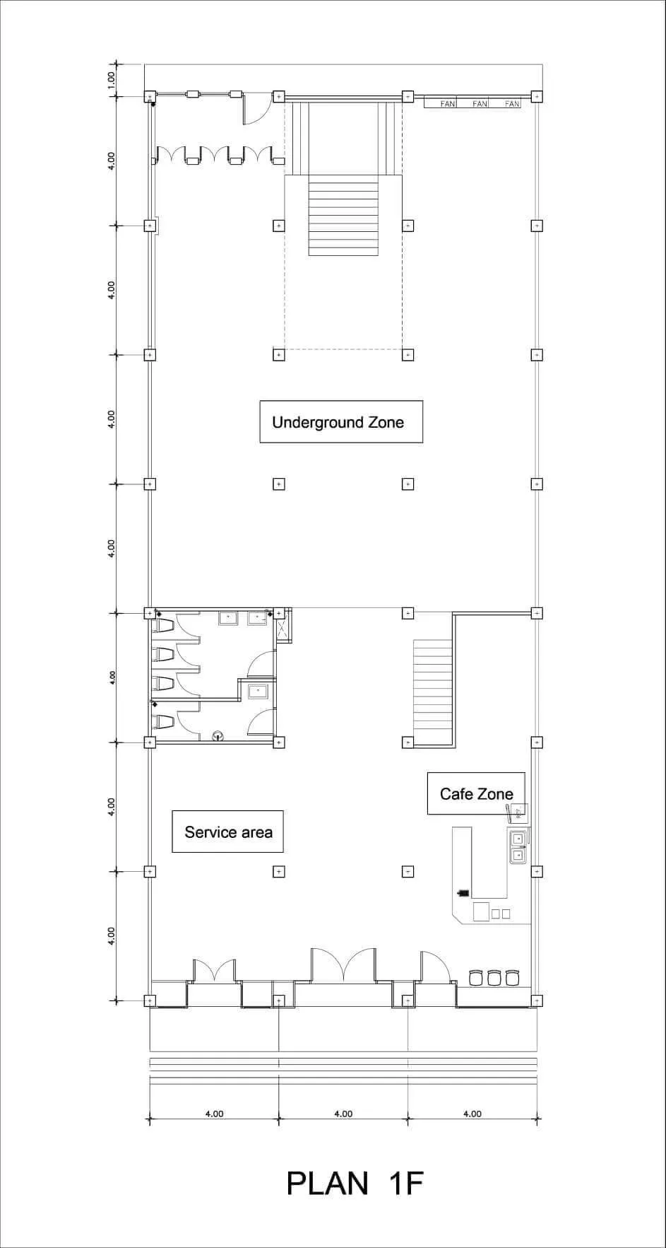
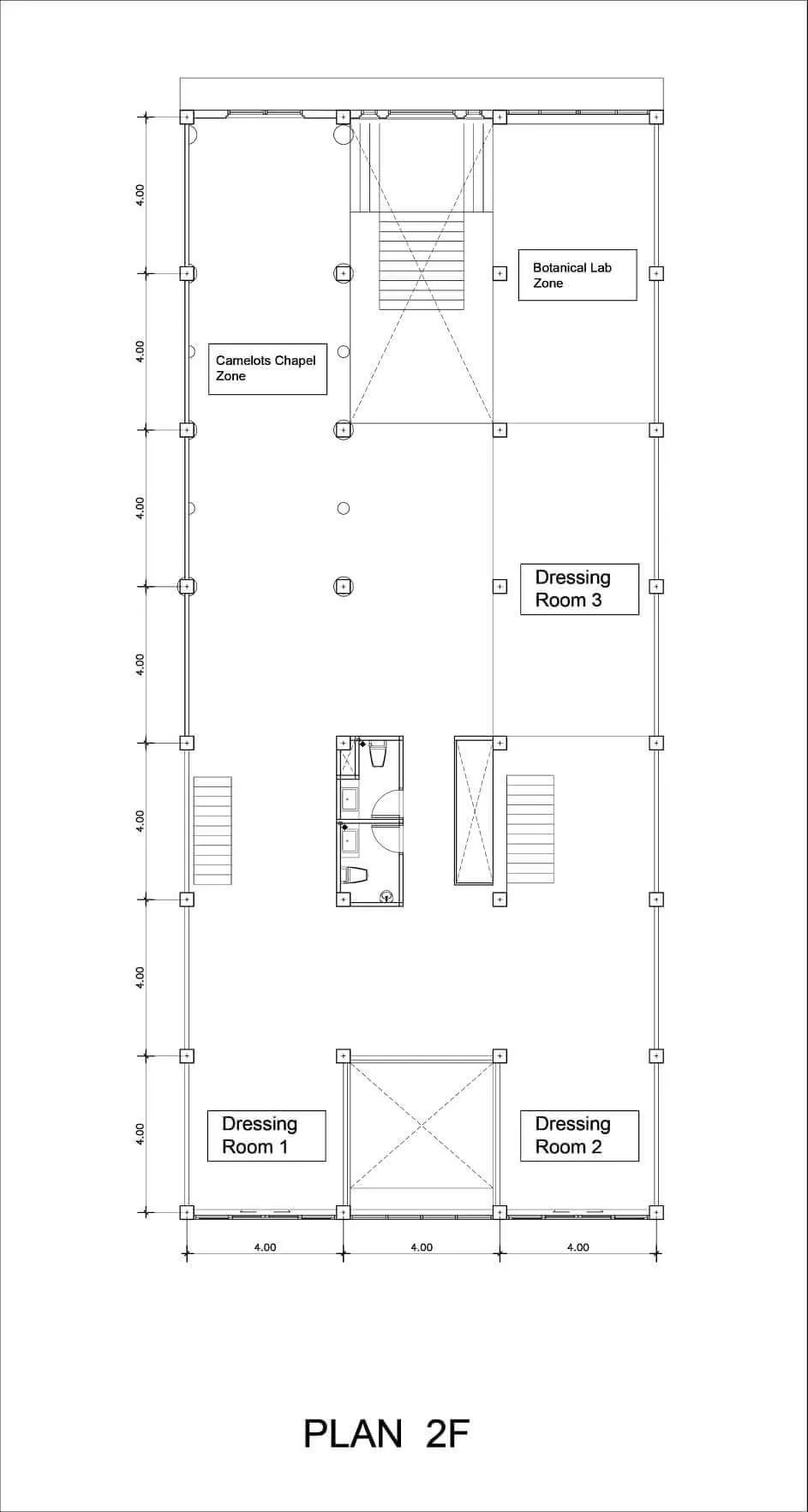
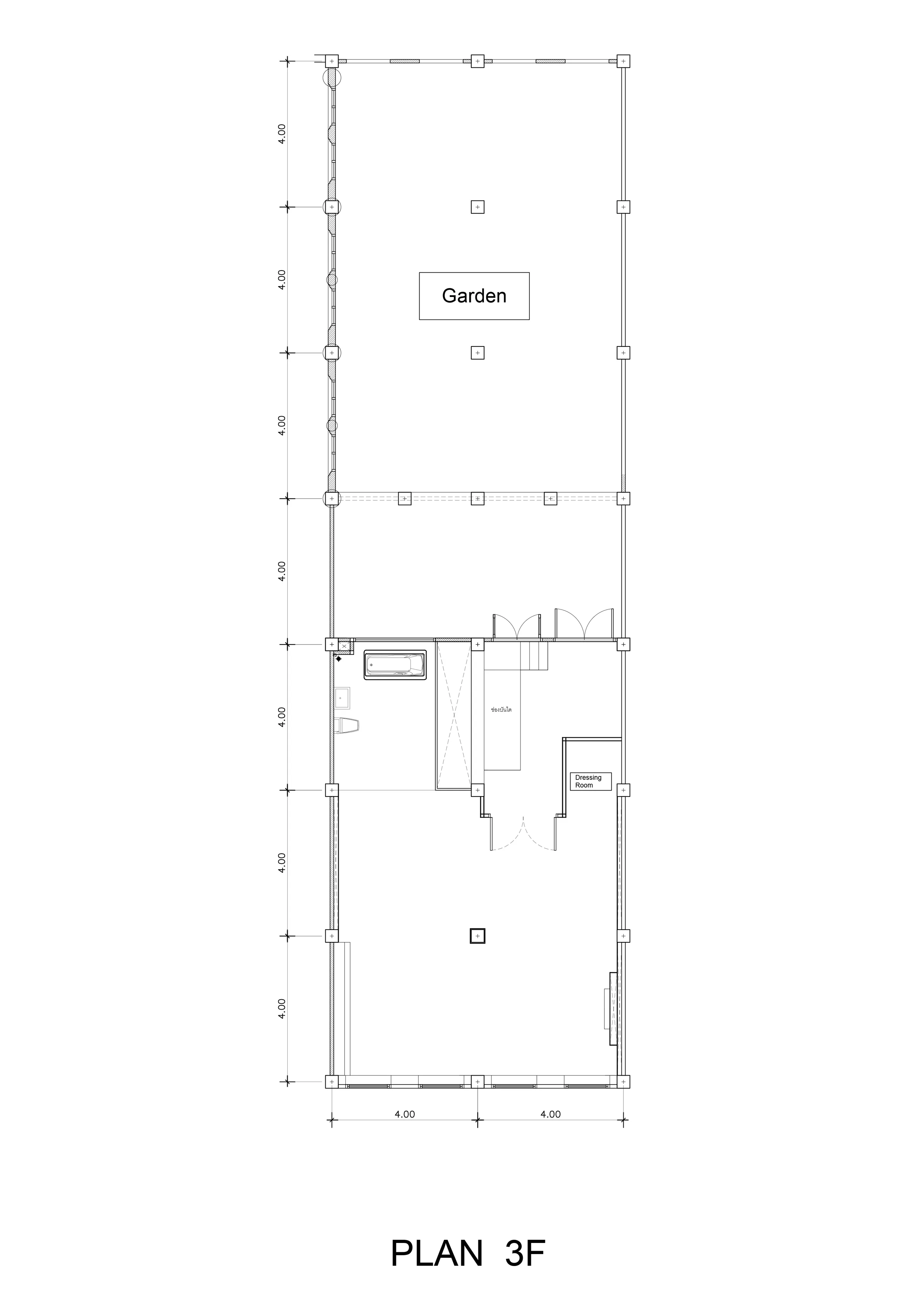
ขายอาคารพาณิชย์ 3 คูหา พร้อมดำเนินกิจการสตูดิโอให้เช่าที่เปิดมานานและมีฐานลูกค้าประจำอย่างต่อเนื่อง เหมาะสำหรับนักลงทุนที่ต้องการทรัพย์สินที่สร้างรายได้ทันที หรือผู้ประกอบการที่ต้องการพื้นที่ขนาดใหญ่เพื่อขยายธุรกิจ   ​[รายละเอียดทรัพย์สิน] ​ประเภท: อาคารพาณิชย์ 3 คูหา (ขายรวม) ​ที่ตั้ง: ซอยเอกชัย 88 ถนนเอกชัย แขวงคลองบางพราน เขตบางบอน กรุงเทพมหานคร ​ ขนาดที่ดิน:  90 ตร.ว. ​ พื้นที่ใช้สอยรวม: 1296 ตร.ม. ​ ความลึก: ลึก 30 เมตร ​ จำนวนชั้น: 5 ชั้น ​ สภาพอาคาร: สภาพดี พร้อมใช้งาน ไม่ต้องปรับปรุงโครงสร้าง   ​[จุดเด่นของอาคารและทำเล] ​ทำเลศักยภาพ: ตั้งอยู่ในซอยที่สามารถเข้า-ออกได้สะดวก ใกล้ถนนเอกชัยและถนนกาญจนาภิเษก การเดินทางสะดวกสบาย ​ พื้นที่ใช้สอยกว้างขวาง: ด้วยความลึกถึง 30 เมตร และมีการตกแต่งให้ใช้งานพื้นที่ได้อย่างมีประสิทธิภาพ และ หลากหลาย ​ สิ่งอำนวยความสะดวก: ใกล้ห้างสรรพสินค้า เซ็นทรัลพระราม 2, โรงพยาบาล บางปะกอก 8, โรงเรียน, ตลาด และแหล่งชุมชน   ​[รายละเอียดและจุดเด่นของกิจการสตูดิโอให้เช่า] ​ ดำเนินธุรกิจต่อเนื่อง: กิจการสตูดิโอให้เช่านี้เปิดมานานและมีชื่อเสียง มีลูกค้าประจำหลากหลายกลุ่ม เช่น ช่างภาพ, กองโปรดักชั่น, ยูทูบเบอร์, ศิลปิน, นักร้อง, ผู้จัดละคร ฯลฯ ​ สร้างรายได้ทันที: ผู้ซื้อสามารถรับช่วงต่อกิจการและสร้างรายได้ได้ทันที ไม่ต้องเสียเวลาในการเริ่มต้นใหม่ ​อุปกรณ์และเฟอร์นิเจอร์: พร้อมโอนกิจการและเฟอร์นิเจอร์ ตกแต่งในสตูดิโอ  [ข้อมูลการขาย] ​ ราคาขาย: 50,000,000 บาท ​เงื่อนไขการโอน: ค่าโอนผู้ซื้อ-ผู้ขายออกคนละครึ่ง 

สิ่งอำนวยความสะดวกในทาวน์เฮ้าส์นี้

ที่จอดรถที่จอดรถ รีโนเวทใหม่ทั้งหมดรีโนเวทใหม่ทั้งหมด (2017)

ข้อมูลทั่วไป

ลงประกาศเมื่อ 5 ก.ย. 2568
อัพเดทล่าสุด 2 เดือนที่แล้ว
ประเภทอสังหาริมทรัพย์ ทาวน์เฮ้าส์
จำนวนชั้น 5
ทำเลที่ตั้ง บางบอน, กรุงเทพมหานคร
ห้องนอน สตูดิโอ
สถานที่ ไม่ระบุ
พื้นที่ใช้สอย 1,110 ตรม.
ราคาต่อตรม. ฿45,045
พื้นที่ใช้สอยภายนอก
เป็นการรวมขนาดของพื้นที่ก่อสร้างภายนอก เช่น สระว่ายน้ำ, ชานบ้าน, ที่จอดรถ และ ศาลา แต่จะไม่รวมพื้นที่สวนเข้าไปด้วย
192 ตรม.
ขนาดที่ดิน 360 ตรม.
สัตว์เลี้ยง อนุญาตทุกชนิด
การถือครองทาวน์เฮ้าส์

ชาวต่างชาติสามารถถือครองกรรมสิทธิ์ในตัวอาคารสำหรับทาวน์เฮ้าส์ในชื่อของตัวเองได้ แต่จะไม่สามารถถือครองกรรมสิทธิ์ในที่ดินที่ใช้ปลูกสร้างทาวน์เฮ้าส์ได้

คนสัญชาติไทย
กรรมสิทธิ์ที่ดิน

ชาวต่างชาติไม่สามารถถือครองกรรมสิทธิ์ที่ดินในประเทศไทยได้ ดังนั้นจำเป็นต้องถือครองด้วยวิธีการถือสัญญาเช่าระยะยาว 30 ปี หรือว่าการซื้อที่ดินภายในชื่อของบริษัทจดทะเบียนเท่านั้น

คนสัญชาติไทย
ประเภทโฉนดที่ดิน โฉนดที่ดิน
สถานะการก่อสร้าง สร้างเสร็จแล้ว (ต.ค. 2534)
เฟอร์นิเจอร์
เป็นยูนิตที่ขายพร้อมกับเฟอร์นิเจอร์ครบชุด ที่เรียกได้ว่าเพียงแค่ยกกระเป๋าเสื้อผ้าเข้าไปก็สามารถอยู่อาศัยได้ทันที โดยมักจะมีเฟอร์นิเจอร์ตั้งแต่โซฟา ชั้นวางทีวี ในห้องรับแขก หรืออุปกรณ์เครื่องครัวทั้งหมด รวมไปถึงโต๊ะอาหาร ไล่เรียงไปยังเตียงนอนและตู้เสื้อผ้า ในห้องนอน (รายละเอียดปลีกย่อยอื่นๆ ขึ้นอยู่กับแต่ละยูนิต)
รวมเฟอร์นิเจอร์
วิวที่มองเห็น วิวเมือง, วิวโล่งๆ
ค่าน้ำ ตามมิเตอร์
ค่าไฟ ตามมิเตอร์
แบบบ้าน ไม่ระบุ
ที่จอดรถ (คัน) 5
ขนาดสระว่ายน้ำ ไม่ระบุ
ค่าส่วนกลาง (ต่อเดือน)
ค่าส่วนกลางนี้จะจ่ายให้กับนิติบุคคลของโครงการในทุก ๆ ปี เพื่อนำเงินเหล่านั้นไปบำรุงส่วนกลางต่าง ๆ ที่ลูกบ้านใช้ร่วมกัน อันได้แก่ สระว่ายน้ำ สวนหย่อม การทำความสะอาด อุปกรณ์ฟิตเนส ที่จอดรถ ค่าไฟ ค่าน้ำ ค่าเก็บขยะ ฯลฯ
ไม่ระบุ
ลงประกาศโดย
เจ้าของขายเอง
เลขที่ยูนิต U5664319

การคำนวณสินเชื่อ

โครงการอื่น ใกล้ๆกับ ขายอาคารพาณิชย์ 3 คูหา พร้อมกิจการสตูดิโอให้เช่า

ทำเลที่ตั้ง
จำนวนยูนิต
ราคา
ค่าเช่าต่อเดือน
ปีที่แล้วเสร็จ
สถานะของโครงการ
ชื่อโครงการ
ทำเลที่ตั้ง
จำนวนยูนิต
ราคา
ค่าเช่าต่อเดือน
ปีที่แล้วเสร็จ
สถานะของโครงการ
ชื่อโครงการ
หมู่บ้าน เอสเค
ทำเลที่ตั้ง
บางบอน, บางบอน, กรุงเทพมหานคร
จำนวนยูนิต
ไม่ระบุ
ราคา
฿2.89M - ฿4.08M
ค่าเช่าต่อเดือน
฿9.96K - ฿12K
ปีที่แล้วเสร็จ
ไม่ระบุ
สถานะของโครงการ
กำลังก่อสร้าง
ทำเลที่ตั้ง
หลักสอง, บางบอน, กรุงเทพมหานคร
จำนวนยูนิต
157
ราคา
฿19.8M
ค่าเช่าต่อเดือน
ไม่ระบุ
ปีที่แล้วเสร็จ
ม.ค. 2562
สถานะของโครงการ
สร้างเสร็จแล้ว
ทำเลที่ตั้ง
บางบอน, บางบอน, กรุงเทพมหานคร
จำนวนยูนิต
168
ราคา
฿7.57M
ค่าเช่าต่อเดือน
ไม่ระบุ
ปีที่แล้วเสร็จ
ม.ค. 2558
สถานะของโครงการ
สร้างเสร็จแล้ว
ชื่อโครงการ
ดีเค พระราม 2
ทำเลที่ตั้ง
บางบอน, บางบอน, กรุงเทพมหานคร
จำนวนยูนิต
ไม่ระบุ
ราคา
฿1.64M - ฿18.5M
ค่าเช่าต่อเดือน
ไม่ระบุ
ปีที่แล้วเสร็จ
ม.ค. 2557
สถานะของโครงการ
สร้างเสร็จแล้ว
ชื่อโครงการ
ปารวีร์ เพชรเกษม 63
ทำเลที่ตั้ง
หลักสอง, บางบอน, กรุงเทพมหานคร
จำนวนยูนิต
77
ราคา
฿6.37M
ค่าเช่าต่อเดือน
ไม่ระบุ
ปีที่แล้วเสร็จ
ส.ค. 2553
สถานะของโครงการ
สร้างเสร็จแล้ว
ทำเลที่ตั้ง
บางบอน, บางบอน, กรุงเทพมหานคร
จำนวนยูนิต
133
ราคา
฿4.68M
ค่าเช่าต่อเดือน
ไม่ระบุ
ปีที่แล้วเสร็จ
ม.ค. 2559
สถานะของโครงการ
สร้างเสร็จแล้ว
ทำเลที่ตั้ง
บางบอน, บางบอน, กรุงเทพมหานคร
จำนวนยูนิต
434
ราคา
฿2.79M - ฿3.98M
ค่าเช่าต่อเดือน
฿14.9K - ฿15.9K
ปีที่แล้วเสร็จ
เม.ย. 2553
สถานะของโครงการ
สร้างเสร็จแล้ว
ทำเลที่ตั้ง
บางแค, บางบอน, กรุงเทพมหานคร
จำนวนยูนิต
183
ราคา
฿3.38M
ค่าเช่าต่อเดือน
฿24.9K
ปีที่แล้วเสร็จ
ไม่ระบุ
สถานะของโครงการ
สร้างเสร็จแล้ว
ชื่อโครงการ
สำเพ็ง 2
ทำเลที่ตั้ง
บางแค, บางบอน, กรุงเทพมหานคร
จำนวนยูนิต
927
ราคา
฿12M
ค่าเช่าต่อเดือน
ไม่ระบุ
ปีที่แล้วเสร็จ
พ.ค. 2557
สถานะของโครงการ
สร้างเสร็จแล้ว
ชื่อโครงการ
เคหะชุมชนธนบุรี 2
ทำเลที่ตั้ง
แสมดำ, บางบอน, กรุงเทพมหานคร
จำนวนยูนิต
999
ราคา
฿970K
ค่าเช่าต่อเดือน
฿4.88K - ฿5.98K
ปีที่แล้วเสร็จ
พ.ค. 2539
สถานะของโครงการ
สร้างเสร็จแล้ว
กลับสู่ด้านบน
  • Fazwaz Group Sites